2020-05-22
古时的“青”,现代的“蓝”,颜色大同小异,内涵却各有千秋。当传统的青花艺术碰撞现代的设计,古典与时尚的融和会带来怎样的家居体验?








现代简约 意象青花 × 雾霾蓝
本案设计以鹰牌2086原创文化产品“意象青花”为主线,结合传统青花艺术和时下流行元素“雾霾蓝”,打造一个符合现代小年轻的居住环境,兼具文化内涵和时尚高级感,以多元化手法演绎现代青花形态,颠覆大众对传统青花的刻板印象。

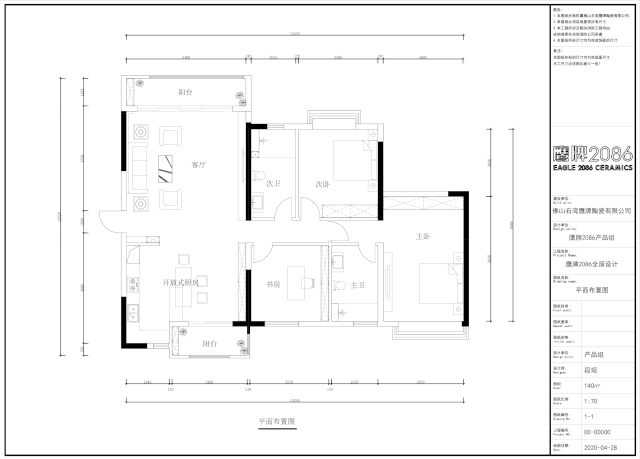
▲平面铺贴图
玄关
宁静素雅的雾霾蓝整体墙面,开门即见,突显了家的主题性和主人的个性,从视觉上强化客人对整体空间的初印象。
小巧精致的玄关柜和悬空台面的设计,实现了置物功能也更节省空间;地面看似不规则的青花碎瓷,好像一条庭院小径,指引走进一个悠然的小世界。

客厅
客厅整体的中性浅色调,营造出最干净温和的视觉观感,「极简」中几处雾霾蓝色块与之搭配,用冷调温和了窗外阳光带来的灼热感。

颠覆传统瓷砖整铺方式,地面利用“意象青花”整砖与瓷片的随性切割拼接,创造出强烈的灵动感,“现代青花”的韵味充满整个家居空间。

餐厅
开放式厨房给用餐时间增添了欢声笑语,方寸之间,一日三餐,阳光充足,绿意盎然,简单而纯粹,享受其中乐趣,感觉时光更漫长一点。
书房
书房不需要很大,小而雅致的书房更能使人聚精会神。设计师摒弃了过于厚重的大书柜,以清丽脱俗的“一抹蓝”作为背景墙,释放出文雅而清静的气氛,与金属质感软装搭配得宜,尽显现代时尚感。(装修小tips:以窗户位置来决定书桌的摆放,如图合理的布置可以利用源源不断的自然光~)

卧室
主卧背景墙运用「浩瀚之境」系列无限连纹,细腻丰富的纹理与静谧的雾霾蓝相得益彰,呈现一种理性的美。

次卧像是一个低调的儿童房,整体看上去好像没有十分童趣的装饰,细细品味,背景墙上那些横七竖八的不规则笔迹,像不像孩童的涂鸦画呢?


卫浴
色调的搭配与整体家居风格保持统一,灵动的“意象青花”打破了卫浴空间的平淡与单调。

设计师对文化表达有自己的语言,用小碎片意象青花重组成一个青花瓷瓶的模样,既表达了现代青花的时尚感,也不失传统青花瓷艺术的经典性。


方案详情
设计:鹰牌2086产品组
风格:现代简约
面积:140㎡
使用产品:意象青花 | 木色年代 | 浩瀚之境 | 精装系列

户型图